1F


No.176

 
 

1F 空間規格:

  • 面寬:5.6 m

  • 樓深:14.5 m

  • 樓高:3.1 m

  • 面積:66 平方公尺 / 約21坪

 

純淨白的展演空間,同時也是樣貌最多元的畫布

歡迎各種不同的活動進駐

 

 

FB 洽詢場勘 ⭢
 

2F


No.176

合約進駐中

2F 空間規格:

  • 面寬:5.4 m

  • 樓深:17m

  • 樓高:3.1 m

  • 面積:約27坪

 

中島廚房設備:
BOSCH三口電爐,單口瓦斯爐、BOSCH旋風式烤箱、冰箱

 

 

FB 洽詢場勘 ⭢

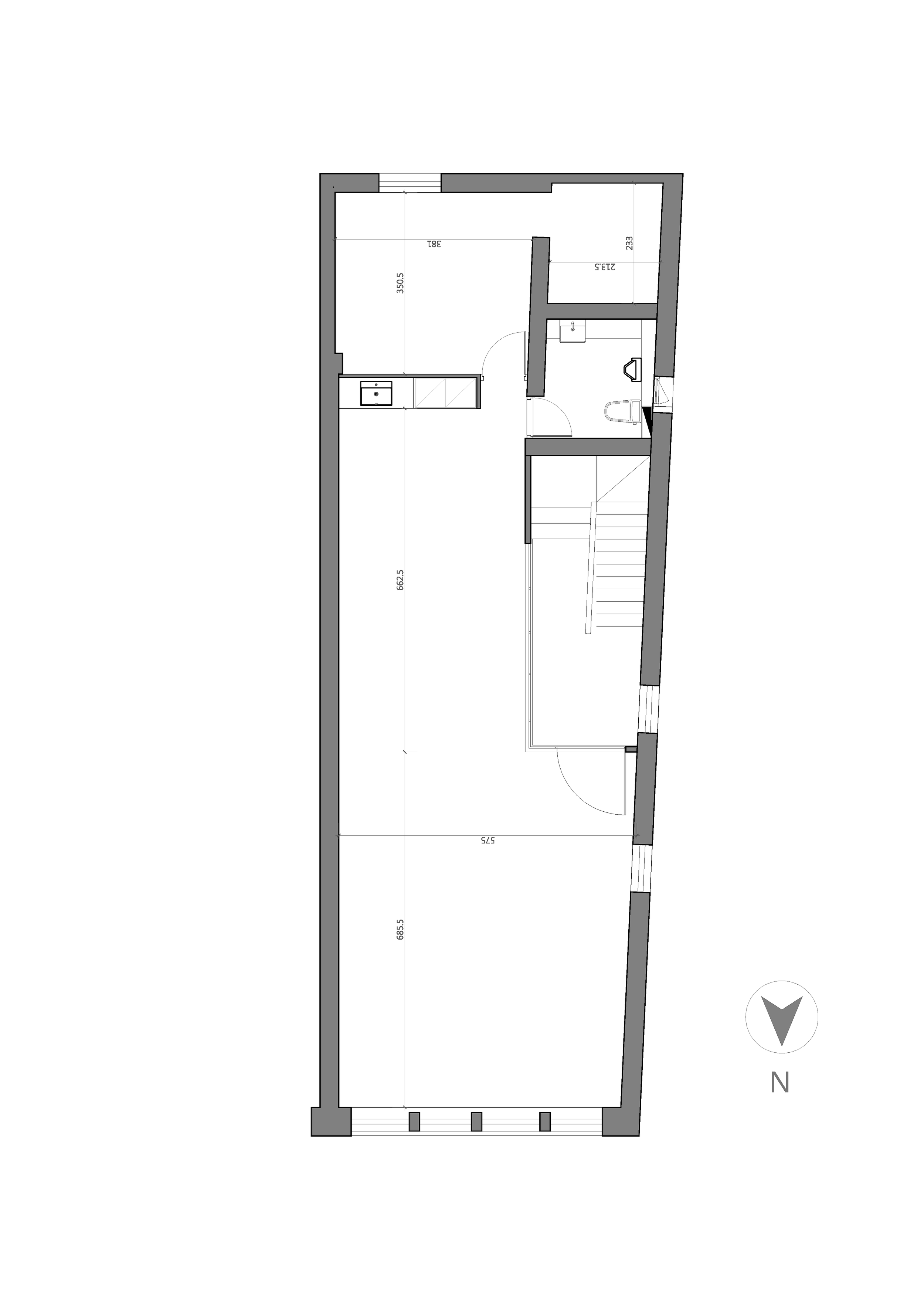
3F


No.176

合約進駐中
Floor plan of a residential space showing a large main room, a kitchen area, small adjoining room, bathroom, and stairway, with measurements and north direction indicated.

3F 空間規格:

  • 面寬:5.4 m

  • 樓深:17 m

  • 樓高:3.1 m

  • 面積:約27坪

 

 

 

4F


No.176

 
 

4F 空間規格:

  • 面寬:5.2 m

  • 樓深:12.6 m

  • 樓高:最高 6 m / 最低 3.1 m

  • 面積:約30坪

 老屋獨有挑高6M的斜屋頂、水泥粉光地面與白色磚牆,仿水泥感移動式展覽方塊。全景開窗,室內不論陰雨皆有充足的自然光。

 

其他設備:化妝台、洗手間

 

FB 洽詢場勘 ⭢